Detailed Engineering

Detailed Engineering is the phase that every technical aspect defined during the Basic Engineering phase is expanded into precise and documentation for construction, procurement and commissioning. Detailed design transforms conceptual into fully detailed 3D model and drawing for construction and installation.

Main Elements of Detailed Engineering includes:

  • Piping and Instrumentation Diagrams (P&IDs): Define exact control, measurement, and interconnection of piping systems.
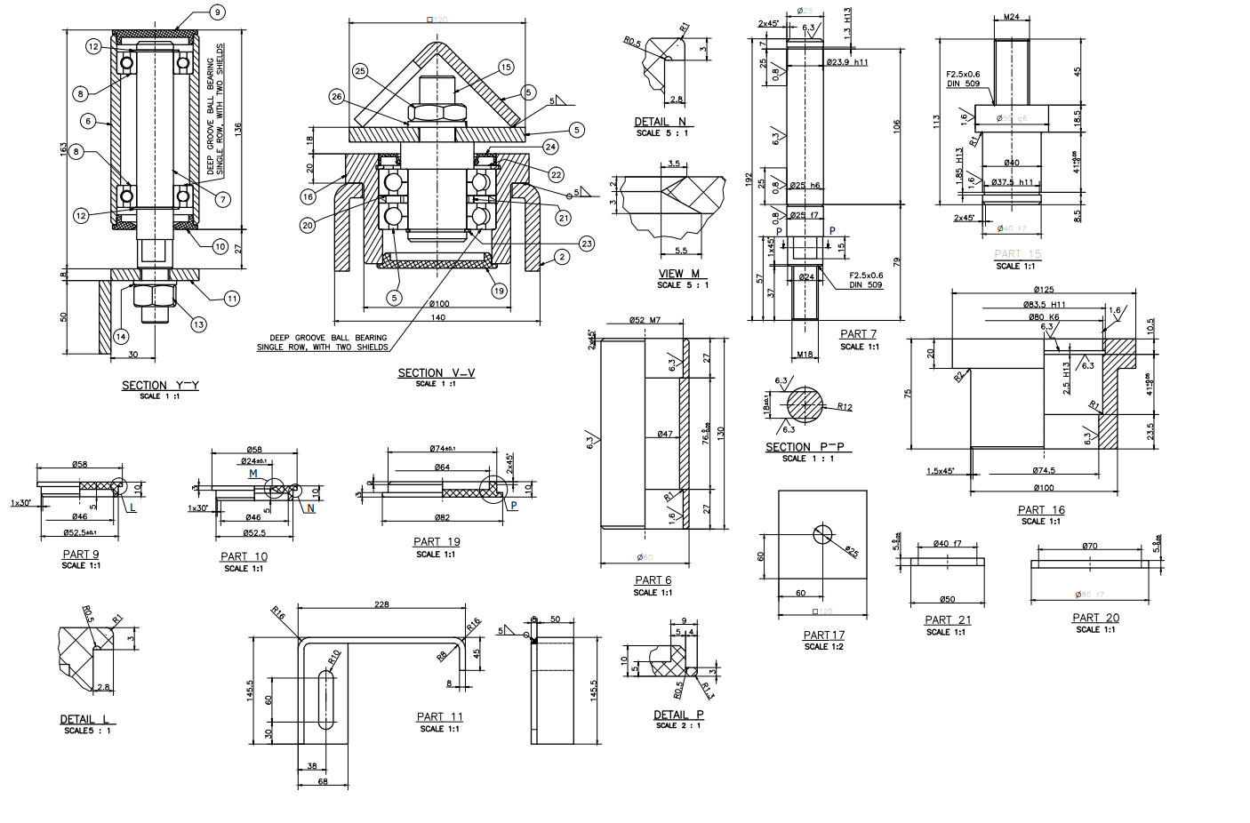
  • Detailed Equipment 3D models, Drawings, Enquiry or Technical Specifications and Datasheets.
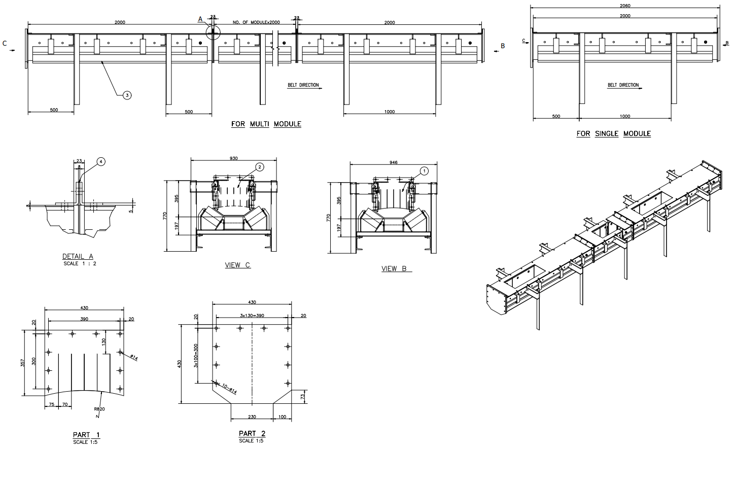
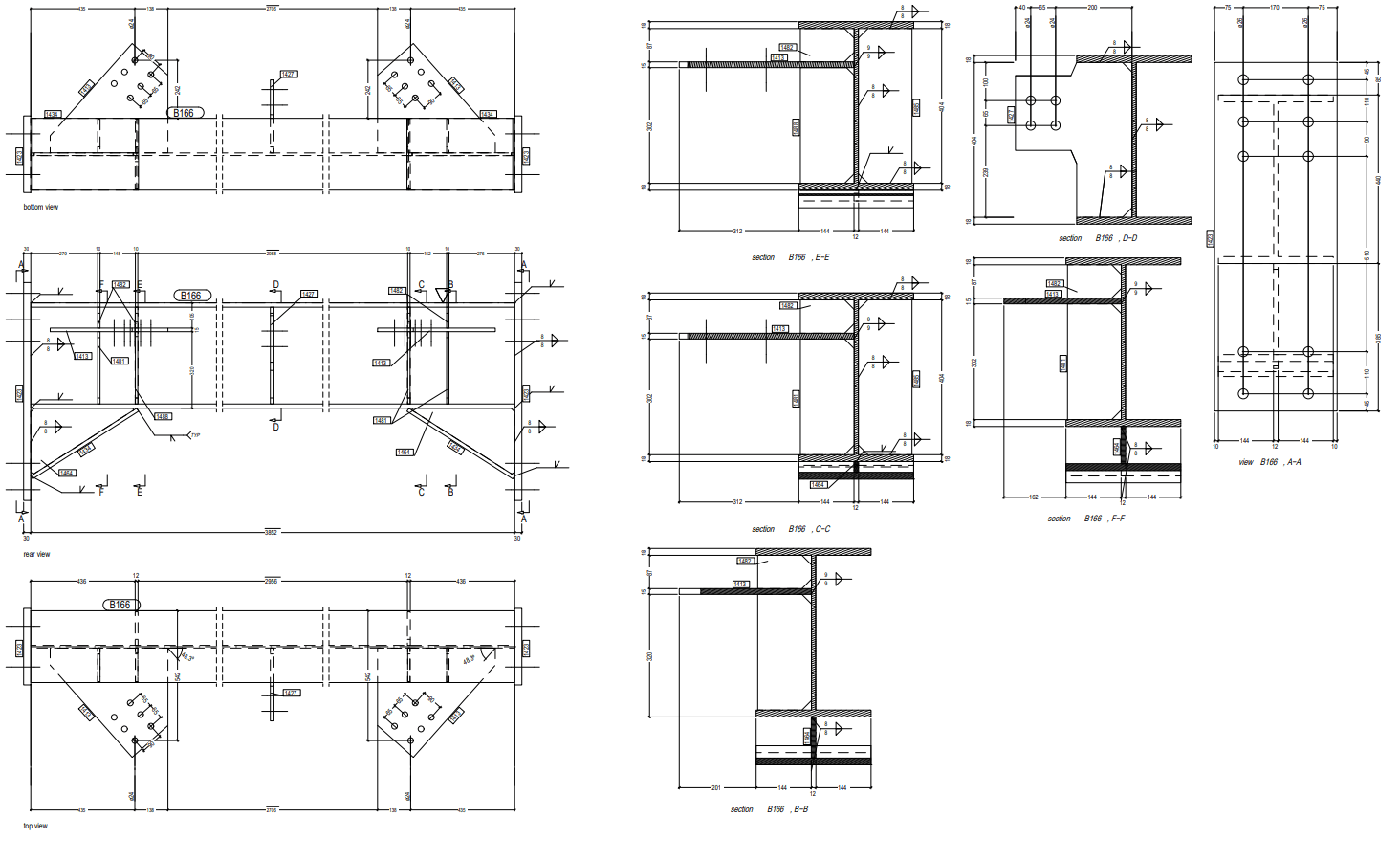
  • Civil and Structural Drawings: Include foundations, supports, and structural frameworks with load analysis.
  • Electrical Layouts and Cable Routing: Specify power distribution, grounding, and motor control systems.
  • Instrumentation and Control Logic: Develop automation sequences and PLC/DCS configurations.
  • 3D Plant Modeling (or BIM) and Clash Detection: Verify spatial integrity and accessibility for maintenance.
  • Bill of Materials (BOM): Provide accurate lists for procurement and cost estimation.
  • Piping Material Specifications.

The outcome of Detailed Engineering is a complete set of deliverables that enables the contractor to start manufacturing with confidence. It minimizes risks during installation and operation, ensures compliance with design codes and standards, and optimizes project cost and schedule.

Streamlined processes for
optimal efficiency

Software Services

We provide a wide range of engineering software services, including CAD (Computer-Aided Design) and CAE (Computer-Aided Engineering) solutions, due to client requirements.

Basic Engineering

Basic Engineering is an overall design plan in a plant that includes main components such as conveyors, silos, piping and transfer systems. In this phase we design the plant based on process demands.

Feasibility Study

Our Feasibility Study and Front-End Engineering Design services cover the complete feasibility evaluation and planning process required for successful project execution.